Skip to content

Manifesto House – A Container Home by James & Mau, for Infiniski

Infiniski designs and builds eco-friendly houses and buildings based on the use of recycled, reused and non polluting materials and the integration of alternative and renewable energy. The Infiniski projects are designed by James & Mau – Architects and designers,  Jaime Gaztelu and Mauricio Galeano, founders and partners of Infiniski.

James & Mau offer Innovative and contemporary designs based on bioclimatic and modular architecture. Infiniski is not only green, it is cheaper and faster … it tries to think the values of architecture and construction differently; a contribution to the needs of our changing environment.

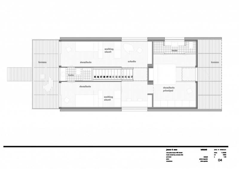
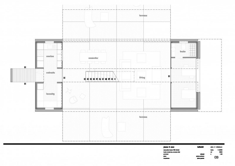
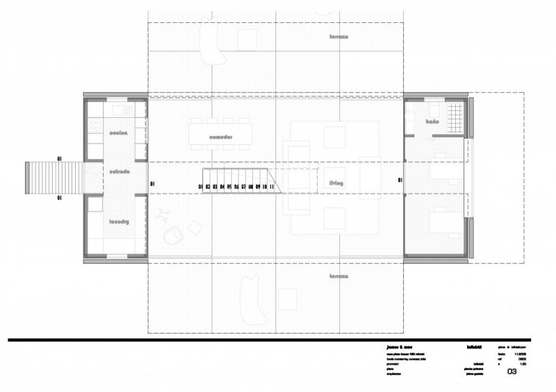
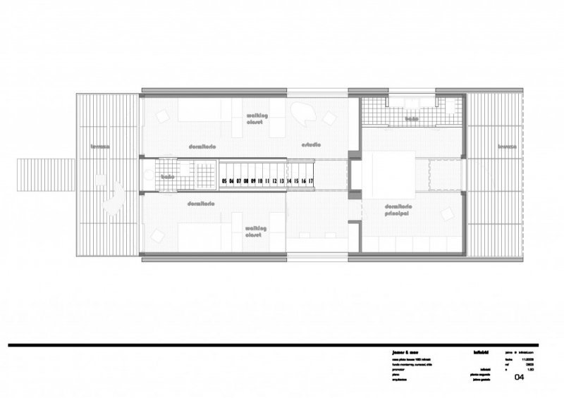
  • Project: Infiniski Manifesto House
  • Architects: James & Mau
  • Location: Curacaví, Chile
  • Built Area: 160 m2 ( + 15 m2 terraces 2nd floor)
  • Landscaping: Infiniski
  • General Contractor and manager: Infiniski
  • Renewable strategy: Infiniski + Geotek
  • Project year: 2009
  • Execution Time: 90 days
  • Total Cost: 79.000 €
  • Photograph: Antonio Corcuera
  • Furniture: Cómodo Studio

Courtesy Of: Arch Daily Photographs By : Antonio Corcuera

🌿Like this content? Let’s keep in touch...

Join thousands who love eco-friendly design.
Get the latest container homes, off-grid retreats, and sustainable living stories — straight to your inbox.


📦 Subscribe now and get inspired.

This field is required.

We don’t spam! Read our privacy policy for more info.

Comments are now closed for this post.