Skip to content

Grillagh Water House | Sustainable Shipping Container Home in Northern Ireland

Located in Northern Ireland’s rural countryside, the Grillagh Water Container House is a striking example of sustainable, innovative design. Created by architect and farmer Patrick Bradley, this Irish shipping container house sits on his family farm in Woodland, County Cavan. It is the first of its kind in Northern Ireland, combining eco-conscious principles with a deep respect for its surroundings.

Construction Images:

A Groundbreaking Design

The shipping container house in Ireland was constructed from four 45-foot containers, merged into two cantilevered structures that extend over the land. Bradley’s design takes inspiration from Northern Ireland’s agricultural architecture, while adding a contemporary twist. The Grillagh Water House maximizes its location with expansive views of the Grillagh River and Drumlamph Woodland.

The layout was crafted to embrace natural light and stunning vistas. Sliding doors open to patios on the south and west sides, connecting the interior with the outdoors. The exterior of the shipping container house features dark grey expanded metal and rusted corten steel, creating a sculptural design that blends seamlessly with the landscape.

Eco-Friendly Materials and Sustainable Design

The Grillagh Water Container House is not just an architectural feat but also a model of sustainable living in Northern Ireland. The shipping containers, originally made by Maersk, were sourced from a nearby port and repurposed into a modern home. This use of industrial materials reduces waste and environmental impact.

Bradley’s design emphasizes energy efficiency, featuring natural insulation and windows strategically placed to capture sunlight. The layout maximizes space and functionality while fostering a strong connection to the outdoors, with minimal environmental impact.

 

The Finished Container House:

A Unique Living Experience

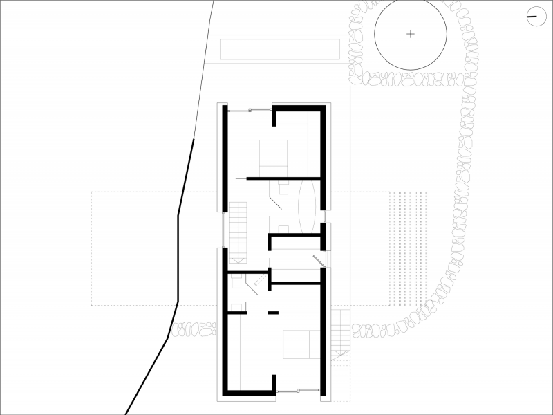
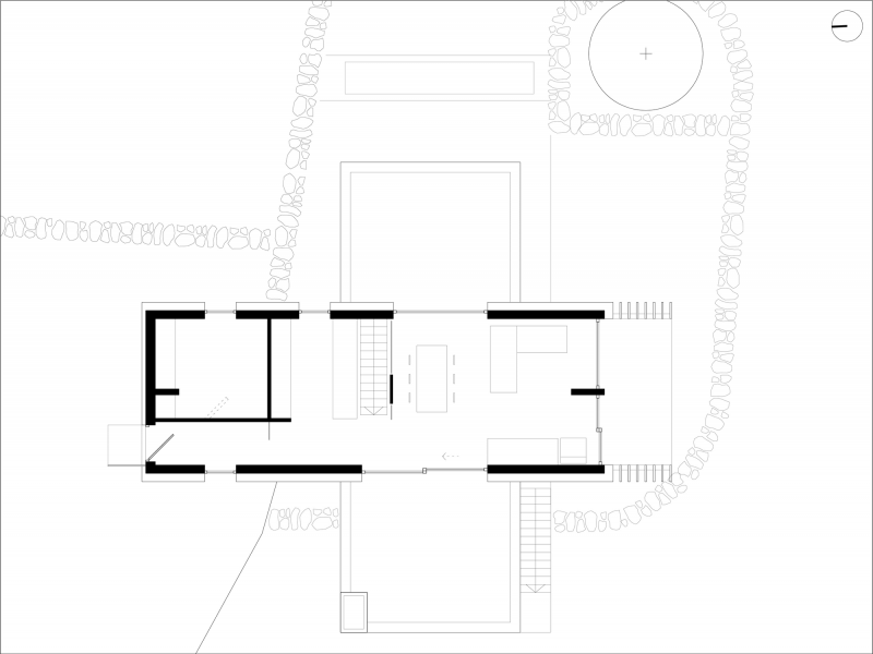
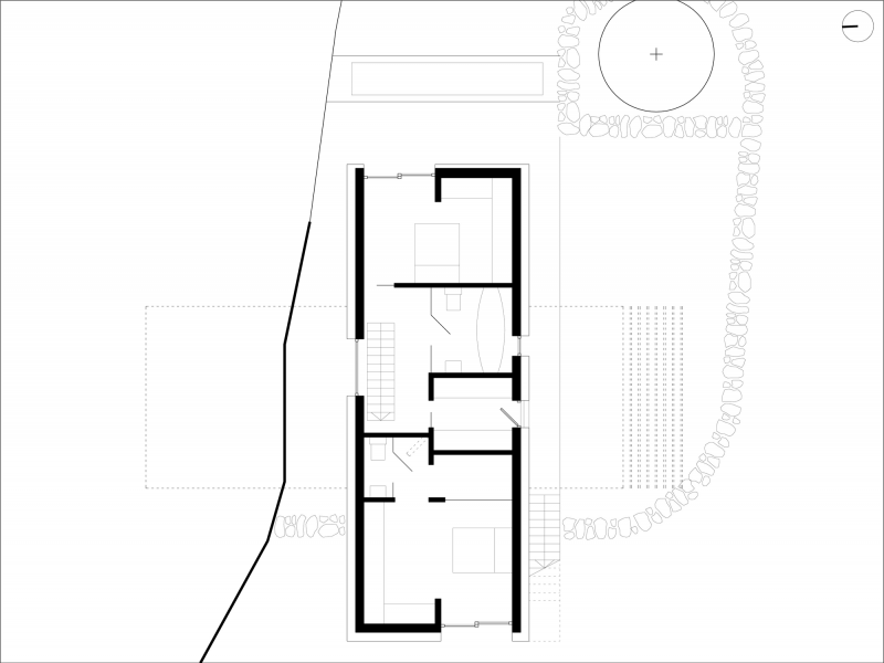
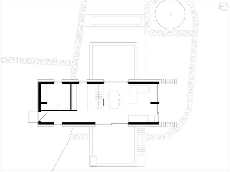
The Grillagh Water Container House blends modern comfort with rural charm. The upper floor contains an open-plan kitchen, dining, and living area, all flowing freely into one another. Balcony areas provide breathtaking views of the landscape. On the lower floor, the master bedroom, utility room, and bathroom offer a peaceful retreat. The bathroom features a suspended hammock-style bath, while the master suite has incredible views of Drumlamph Woodland.

With a compact footprint of 1,236 square feet, the Grillagh Water Container House shows that sustainable design can be both practical and beautiful. It demonstrates how shipping container homes in Ireland can be both innovative and comfortable while honoring the natural surroundings.

Recognition and Legacy

The Grillagh Water Container House has earned widespread acclaim, including recognition at the Royal Institute of British Architects (RIBA) 2014 Excellence Awards. Featured on the popular Grand Designs TV show, it has inspired others to explore shipping container homes in Ireland. The home is a model for future eco-friendly housing solutions that blend contemporary Irish architecture with nature.

The Grillagh Water Container House stands as a prime example of how modern, sustainable architecture can integrate seamlessly with rural landscapes.

 

Grillagh Water Container House Plans:

As seen on TV:

 

Architect
Patrick Bradley Architects Ltd
www.pb-architects.com
studio@pb-architects.com

Photos Courtesy of: Aidan Monaghan Photographer
http://www.aidanmonaghanphotography.com/

 

🌿Like this content? Let’s keep in touch...

Join thousands who love eco-friendly design.
Get the latest container homes, off-grid retreats, and sustainable living stories — straight to your inbox.


📦 Subscribe now and get inspired.

This field is required.

We don’t spam! Read our privacy policy for more info.

Comments are now closed for this post.