Skip to content

Casa El Tiemblo aka Casa Rauliniski – Shipping Container Home by Infiniski and James & Mau

Infiniski combined with James & Mau are amongst of our favourite shipping container home designers and builders. Casa El Tiemblo aka Casa Raulinski is another one of their creative recycled projects. Located in El Tiemblo in the province of Ávila, Spain, this shipping container home was completed within six months for a budget of 140,000 euros. 

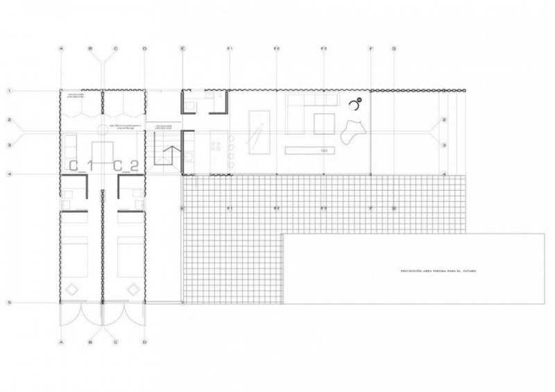
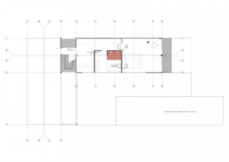
This shipping container home is 190 m2 and was constructed in an “L” shaped form. The home was created by using four recycled shipping containers to create the ground floor, and by a secondary metal structure that serves as structural support for two more containers that comprise the first floor.

Infiniski sought to adapt the house to the natural environmental conditions of the land, and to achieve maximum energy independence. The main South facing aspect provides beautiful views of the local  valley and mountains, and allows direct sun in winter to heat the main façade. The house is located at an altitude of more than 1,100 meters, so the shipping containers are also complemented by the ecological system of biomass heating.

Doors and windows have been organized to promote refreshing natural cross ventilation. Large windows allow natural light to flow freely through space.

The inner enclosure consists of cellulose insulation, paper from recycled newspaper, and cork in some places, as well as Fermacell replacing the plasterboard (dry-wall) with an organic composition .

The house is divided into two floors : living room, kitchenette, shower room on ground floor, and on first floor there is a study, bathroom and ensuite master bedroom with walking closet .

The area for visitors is on the ground floor of the second part of the “L”. The overall design allows an independence between major areas and areas of guests , achieving improved privacy and ensuring greater control of energy consumption throughout the program.

Courtesy: InfiniskiPuntafina News

Photos: © Pablo Sarabia.

 

🌿Like this content? Let’s keep in touch...

Join thousands who love eco-friendly design.
Get the latest container homes, off-grid retreats, and sustainable living stories — straight to your inbox.


📦 Subscribe now and get inspired.

This field is required.

We don’t spam! Read our privacy policy for more info.

2 Comments

  1. Hello! I really like this house and wanted to ask about the budget you mention in the article. Does this include the price for the piece of land that the house is on, or just the construction of the house?

    Many greetings!

Comments are now closed for this post.